Omschrijving
Wat een ruimte, wat een licht en wat een mogelijkheden! Deze ruim bemeten eengezinswoning, type middenwoning, heeft lekker veel daglichttoetreding door de grote ramen. Aan de achterzijde zijn mogelijkheden om uit te bouwen en het plaatsen van een dakkapel op de toch al grote zolder maakt dat de woning ook voor grote (samengestelde) gezinnen zeer […]
Meer informatie
Kenmerken
| Soort object | Woonhuis |
|---|---|
| Type woning | Tussenwoning |
| Vraagprijs | € 350.000,- k.k. |
| Bouwjaar | 1968 |
| Energielabel | C |
| Woonoppervlakte | 129 m2 |
| Inhoud | 455 m3 |
| Perceeloppervlakte | 139 m2 |
Heeft u vragen over dit object?
Omschrijving
Wat een ruimte, wat een licht en wat een mogelijkheden!
Deze ruim bemeten eengezinswoning, type middenwoning, heeft lekker veel daglichttoetreding door de grote ramen. Aan de achterzijde zijn mogelijkheden om uit te bouwen en het plaatsen van een dakkapel op de toch al grote zolder maakt dat de woning ook voor grote (samengestelde) gezinnen zeer geschikt is.
Voorts beschikt de woning over een voor- en achtertuin, een berging en een achterom. De tuin ligt bijna “pal” op het zuiden en dat maakt het dakvlak aan de achterzijde uitermate geschikt voor het plaatsen van zonnepanelen. Zo verbeter je eenvoudig het energielabel. Aan de voorzijde voldoende openbare parkeergelegenheid; de groenstrook en het trottoir zorgen voor extra afstand tot de straat.
Aldenhof is een wijk die door bewoners zeer gewaardeerd wordt. Rustig en royaal opgezet, voldoende parkeergelegenheid en op korte afstand van alle denkbare voorzieningen. Ook recreatiegebied “De Berendonck”, belangrijke uitvalswegen, winkelcentrum en NS-station Dukenburg, maken dat deze woning in een zeer aantrekkelijke leefomgeving ligt. In het aangrenzende Meijhorst is op loopafstand de AH, een Lidl, het stadskantoor en zwembad Dukenburg gelegen. In het nabijgelegen Malvert is ook een winkelcentrum met onder andere een Jumbo en een fietsenmaker.
Indeling:
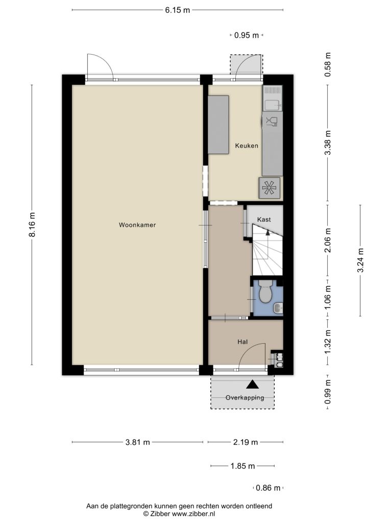
Begane grond: entree; tochtportaal met meterkast en garderobe. Hal met toilet voorzien van fonteintje, trap naar verdieping en provisie/trapkast. De ruime doorzon woonkamer van wel 31 m² is meer dan groot genoeg voor een ruime zithoek en een lange eettafel. En dan nog past er een werkplek en/of speelhoek voor de kinderen bij.
Er is een dichte keuken die zowel vanuit de hal alsook vanuit de woonkamer bereikbaar is. De keuken is voorzien van een eenvoudige dubbele inrichting met veel kastruimte en enkele ingebouwde apparaten waaronder een gaskookplaat, oven en vaatwasser.
De achtertuin is zowel via de keuken alsook via de woonkamer te betreden.
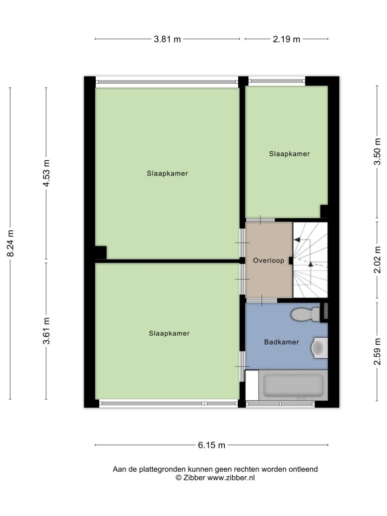
Eerste verdieping: overloop van waaruit alle vertrekken bereikbaar zijn; er zijn drie slaapkamers van respectievelijk 8, 14 en 17 m². De functionele badkamer is voorzien van een ligbad, wastafelmeubel en tweede toilet.
Tweede verdieping: grote voorzolder met veel bergruimte en de opstelling van de cv-ketel en het witgoed.
Riante zolderkamer van netto 17 m² (gerekend vanaf de 1,50 lijn) met dakraam en veel bergruimte. Zeker met het plaatsen van een dakkapel is deze kamer goed op te delen in twee separate (slaap)kamers.
Bijzonderheden:
– Centrale verwarming via Vaillant combiketel.
– De woning is voorzien van enige dakisolatie en gedeeltelijk dubbele beglazing.
– Thans energielabel C.
– Lichte en ruime woning.
– Indrukwekkende zolderetage qua grootte en nokhoogte.
– Achtertuin met gunstige zonligging, berging en achterom.
– Aan de voorzijde gelegen aan trottoir, parkeerhavens en groenstrook.
– Centrale ligging, goede aansluiting op uitvalswegen en snelwegen A73, A326 en A50.
– Treinstation Dukenburg nabij.
– Diverse winkels, stadskantoor en zwembad in nabij gelegen wijk(en).
Kenmerken
Overdracht
| Vraagprijs | € 350.000,- k.k. |
|---|---|
| Status | Beschikbaar |
| Aanvaarding | In overleg |
Bouwvorm
| Soort object | Woonhuis |
|---|---|
| Soort woning | Eengezinswoning |
| Type woning | Tussenwoning |
| Soort Bouwvorm | Bestaande bouw |
| Bouwjaar | 1968 |
| Soort dak | Zadeldak |
Gebruiksoppervlakten
| Woonoppervlakte | 129 m2 |
|---|---|
| Perceeloppervlakte | 139 m2 |
| Inhoud | 455 m3 |
Indeling
| Aantal kamers | 5 |
|---|---|
| Aantal slaapkamers | 4 |
| Aantal badkamers | 1 |
| Voorzieningen | Dakraam, tv kabel |
Energie
| Voorlopig energielabel | C |
|---|---|
| Energie einddatum | 30 April 2027 |
| Warmwater | c.v.-ketel |
| Isolatie | Dakisolatie, gedeeltelijk dubbel glas |
| Combiketel | Nee |
Buitenruimte
| Ligging | In woonwijk |
|---|---|
| Tuin | Achtertuin, voortuin |
| Achtertuin | 64 m2 |
| Ligging tuin | Zuid |
Garage
| Soort garage | Geen garage |
|---|
































