Omschrijving
In het hart van het stadscentrum ligt verrassend rustig deze ruime en lichte maisonnette met balkon en berging in de onderverdieping. Het appartement is gesitueerd op de bovenste 2 woonlagen van het kleinschalige complex. De Burchtstraat is al enige jaren een autoluwe straat zonder doorgaand verkeer. Het appartement is voorzien van kunststof kozijnen met isolerende […]
Meer informatie
Kenmerken
| Soort object | Woonhuis |
|---|---|
| Vraagprijs | € 385.000,- k.k. |
| Bouwjaar | 1956 |
| Energielabel | D |
| Woonoppervlakte | 82 m2 |
| Inhoud | 269 m3 |
Heeft u vragen over dit object?
Omschrijving
In het hart van het stadscentrum ligt verrassend rustig deze ruime en lichte maisonnette met balkon en berging in de onderverdieping. Het appartement is gesitueerd op de bovenste 2 woonlagen van het kleinschalige complex. De Burchtstraat is al enige jaren een autoluwe straat zonder doorgaand verkeer.
Het appartement is voorzien van kunststof kozijnen met isolerende beglazing en zijn enkele geveldelen geïsoleerd. De VvE is actief en wordt professioneel beheerd.
De gezelligheid van het stadscentrum brengt altijd wat reuring terwijl je op deze bovenste etages toch echt behoorlijk rustig zit. De keuken, één van de slaapkamers en het balkon liggen in complete stilte aan de achterzijde; de zuidzijde.
Je zit letterlijk boven de winkels, restaurantjes en gezellige cafétjes. Maar het stadscentrum kent meer…. Zo is er op zaterdag én maandag een uitgebreide markt en is stadspark Het Valkhof op loopafstand. Verder staat het centrum van de oudste stad van Nederland bol van de historische plekken. Twee keer per jaar staat de binnenstad op z’n kop; dat is tijdens de najaarskermis en natuurlijk de zomerfeesten van de vierdaagse. Maar altijd blijft je appartement veilig en makkelijk bereikbaar.
Indeling:
Begane grond: overdekte portiek met entree en intercom. Hal met brievenbussen en deur naar het trappenhuis. Vanuit het trappenhuis kun je de onderverdieping bereiken alwaar je eigen kelderberging is. Deze berging is via de Raadhuisstraat ook makkelijk via een inpandige hellingbaan bereikbaar, zodat het binnen stallen van je fiets een makkie is.
Derde verdieping / eerste woonlaag: via het trappenhuis kom je op de derde verdieping alwaar de voordeuren van 4 maisonnettes zijn gelegen; kleinschalig dus. De privé-entree brengt je in het tochtportaal van de woning en via de hal met trapkast, bergkast en toilet bereikbaar je de woonkamer. De woonkamer beschikt over een vaste kast en hiervandaan kijk je aan de overzijde uit op het statige van pand van de C&A. Naast de entree is een eetkeuken met een in hoek opgestelde inrichting die is voorzien van enkele ingebouwde apparaten. Vanuit de keuken is ook een berg-provisiekast toegankelijk met daarin de aansluiting van de wasmachine.
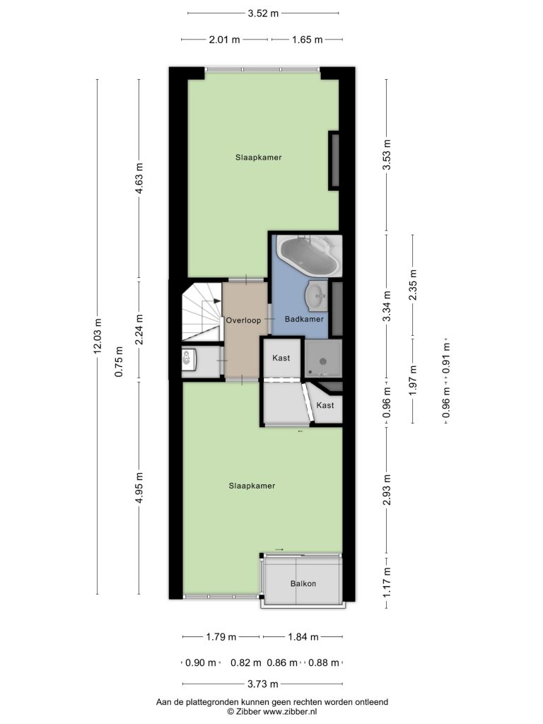
Vierde verdieping / tweede woonlaag: overloop met vaste kast waarin de opstelling van de cv-ketel; twee slaapkamers waarvan de zonnige en meest rustig gelegen slaapkamer beschikt over een inloopkast en een balkon. De slaapkamer aan de voorzijde ligt aan de koele zijde van het gebouw. Tussen de slaapkamers in is de badkamer gesitueerd die beschikt over een ligbad, separate douche en een wastafelmeubel.
Bijzonderheden:
– Centrale verwarming via combiketel.
– Geheel voorzien van kunststof kozijnen met dubbele beglazing.
– Praktische indeling.
– Geschikt voor zelfstandige bewoning in combinatie met hospitafunctie.
– Ietwat gedateerde maar nog prima bruikbare voorzieningen.
– Werkelijk nabij alle denkbare voorzieningen gelegen.
– Actieve en professioneel beheerde VvE met een maandelijkse bijdrage van € 160,22.
Kenmerken
Overdracht
| Vraagprijs | € 385.000,- k.k. |
|---|---|
| Status | Beschikbaar |
| Aanvaarding | In overleg |
Bouwvorm
| Soort object | Woonhuis |
|---|---|
| Soort Bouwvorm | Bestaande bouw |
| Bouwjaar | 1956 |
| Soort dak | Plat dak |
Gebruiksoppervlakten
| Woonoppervlakte | 82 m2 |
|---|---|
| Inhoud | 269 m3 |
Indeling
| Aantal kamers | 3 |
|---|---|
| Aantal slaapkamers | 2 |
| Aantal badkamers | 1 |
| Aantal woonlagen | 2 woonlage |
| Voorzieningen | Tv kabel |
Energie
| Voorlopig energielabel | D |
|---|---|
| Energie einddatum | 25 February 2036 |
| Warmwater | c.v.-ketel |
| Isolatie | Dubbel glas |
| Combiketel | Nee |
Buitenruimte
| Ligging | In centrum |
|---|---|
| Tuin | Geen tuin |
Garage
| Soort garage | Geen garage |
|---|








































