Omschrijving
Centraal en rustig gelegen geheel gerenoveerde en uitgebouwde eengezinswoning, type tussenwoning, met voor- en achtertuin met achterom. Zowel aan de woning als aan de berging zit een ruime overkapping. In de achtertuin pak je veel zonuren en mede door de twee (terras)overkappingen is er ook altijd wel schaduw te vinden. De woning is door de […]
Meer informatie
Kenmerken
| Soort object | Woonhuis |
|---|---|
| Type woning | Tussenwoning |
| Vraagprijs | € 399.000,- k.k. |
| Bouwjaar | 1965 |
| Energielabel | C |
| Woonoppervlakte | 93 m2 |
| Inhoud | 329 m3 |
| Perceeloppervlakte | 154 m2 |
Heeft u vragen over dit object?
Omschrijving
Centraal en rustig gelegen geheel gerenoveerde en uitgebouwde eengezinswoning, type tussenwoning, met voor- en achtertuin met achterom. Zowel aan de woning als aan de berging zit een ruime overkapping. In de achtertuin pak je veel zonuren en mede door de twee (terras)overkappingen is er ook altijd wel schaduw te vinden.
De woning is door de jaren heen tot vrij recent op diverse onderdelen aangepast, verbouwd en gemoderniseerd. De woning is met recht instapklaar te noemen met een in 2017 nieuw geplaatste keuken voorzien van alle denkbare luxe en een in 2025 vernieuwde badkamer met inloopdouche en comfortabel wastafelmeubel. De cosmetische afwerking is met recht “strak” te noemen; afgewerkt in lichte kleuren en met oog voor detail.
De wijk Hatert maakt al jaren positieve ontwikkelingen door. Niet alleen doordat de verhouding tussen koop- en huurwoningen in een goede balans is gekomen, maar zeker ook door de recent ontwikkelde nieuwbouw. Daar komt bij dat Hatert beschikt over een uitgebreid winkelcentrum, diverse openbare voorzieningen en zeer centraal gelegen is.
Het stadscentrum van Nijmegen, de ziekenhuizen en de universiteit zijn prima met auto, OV en fiets te bereiken. Op enkele minuten afstand bevinden zich basisscholen en een scholengemeenschap voor het voortgezet onderwijs. Via de nabijgelegen uitvalswegen is er een perfecte aansluiting op het landelijk wegennet (A73 en A50).
Indeling:
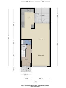
Begane grond: entree, hal met kelderkast en zeer ruim licht betegeld toilet voorzien van hangend closet en fonteintje. De hal en het toilet zijn op creatieve wijze wat groter gemaakt door beter gebruik te maken van de indeling.
Lichte doorzon woonkamer met aansluitend de open eet/woonkeuken. Ook hier is de indeling wat gewijzigd en is door het plaatsen van een uitbouw aanzienlijk meer ruimte ontstaan.
De keukeninrichting is uitgevoerd in hoogglans “gebroken wit” en naast veel kastruimte voorzien van een ingebouwde 5-pits gaskookplaat mét wok brander, een afzuigkap, een oven, koelkast, vriezer en natuurlijk een vaatwasser.
In de keuken is naar eigen inzicht ruimte voor een (tweede) grote eettafel waardoor er een echte woonkeuken ontstaat. Maar bedoelde ruimte kan ook worden ingericht als thuiswerkplek of speelhoek voor de kids. De woonkamer heeft openslaande deuren naar het overdekte terras dat ook vanuit de keuken bereikbaar is.
Eerste verdieping: overloop; drie slaapkamers van respectievelijk 6, 11 en 13 m² waarvan de kleinste is voorzien van een vaste kast waarin de opstelling van de cv-ketel is; nieuwe moderne badkamer met ruime inloopdouche voorzien van drain, thermostaatkraan en glazen wand en een luxe wastafelmeubel met lades.
Bijzonderheden:
– Centrale verwarming via Intergas combiketel uit 2023. Het betreft een huurketel en overname of afkopen van het
huurcontract is bespreekbaar maar afhankelijk van de overeen te komen koopsom.
– De woning is geheel voorzien van dubbel glas en volgens het energielabel is er enige vorm van muur- en dakisolatie en
zijn gevelpanelen geïsoleerd.
– Energielabel C maar een labelsprong is met de installatie van enkele zonnepanelen makkelijk gerealiseerd.
– Kozijnen zijn deels uitgevoerd in hout en deels in kunststof met draai-kiep ramen.
– In de achtertuin staat over de volle breedte een houten bijgebouw dat bestaat uit een af te sluiten berging en een
terrasoverkapping met deur naar achterom.
– Prima wijkvoorzieningen als winkels, scholen, bibliotheek etc.
– Prima OV-verbinding.
– Centraal gelegen t.o.v. ziekenhuizen, universiteit, stadscentrum en Malden en met een goede aansluiting op het landelijk
wegennet.
Kenmerken
Overdracht
| Vraagprijs | € 399.000,- k.k. |
|---|---|
| Status | Beschikbaar |
| Aanvaarding | In overleg |
Bouwvorm
| Soort object | Woonhuis |
|---|---|
| Soort woning | Eengezinswoning |
| Type woning | Tussenwoning |
| Soort Bouwvorm | Bestaande bouw |
| Bouwjaar | 1965 |
| Soort dak | Plat dak |
Gebruiksoppervlakten
| Woonoppervlakte | 93 m2 |
|---|---|
| Perceeloppervlakte | 154 m2 |
| Inhoud | 329 m3 |
Indeling
| Aantal kamers | 4 |
|---|---|
| Aantal slaapkamers | 3 |
| Aantal badkamers | 1 |
| Voorzieningen | Tv kabel |
Energie
| Voorlopig energielabel | C |
|---|---|
| Energie einddatum | 12 December 2035 |
| Warmwater | c.v.-ketel |
| Isolatie | Dakisolatie, muurisolatie, dubbel glas |
| Combiketel | Nee |
Buitenruimte
| Ligging | Aan rustige weg, in woonwijk |
|---|---|
| Tuin | Achtertuin, voortuin |
| Achtertuin | 70 m2 |
| Ligging tuin | Noordoost |
Garage
| Soort garage | Geen garage |
|---|



























