Omschrijving
KOOPVOORRANG Voordat deze woning op de vrije markt wordt aangeboden, krijgen huurders van een sociale huurwoning van Portaal, Woonwaarts, Talis en SSH& in de gemeenten Nijmegen, Wijchen, Beuningen en Druten voorrang om deze woning te kopen. Wil je als huurder in aanmerking komen voor deze voorrangsregeling? Maak dan uiterlijk 20 februari 2026 je interesse kenbaar […]
Meer informatie
Kenmerken
| Soort object | Woonhuis |
|---|---|
| Type woning | Hoekwoning |
| Vraagprijs | € 362.500,- k.k. |
| Bouwjaar | 1963 |
| Energielabel | C |
| Woonoppervlakte | 104 m2 |
| Inhoud | 390 m3 |
| Perceeloppervlakte | 200 m2 |
Heeft u vragen over dit object?
Omschrijving
KOOPVOORRANG
Voordat deze woning op de vrije markt wordt aangeboden, krijgen huurders van een sociale huurwoning van Portaal, Woonwaarts, Talis en SSH& in de gemeenten Nijmegen, Wijchen, Beuningen en Druten voorrang om deze woning te kopen. Wil je als huurder in aanmerking komen voor deze voorrangsregeling? Maak dan uiterlijk 20 februari 2026 je interesse kenbaar bij de verkopende makelaar. Daarna is er geen garantie op bezichtigen en deelname.
Sandenburgstraat 10 – Hoekwoning met extra badkamer op de begane grond, veel potentie gelegen in geliefde wijk Hatert, !
Ben je op zoek naar een woning die je volledig naar eigen wens kunt moderniseren? Dan is deze hoekwoning aan de Sandenburgstraat 10 een mooie kans! Gelegen in de groene en rustige wijk Hatert biedt deze woning volop ruimte, licht en mogelijkheden om er jouw droomhuis van te maken.
De woning dient opgeknapt te worden, wat juist veel vrijheid geeft in indeling en afwerking. Een groot pluspunt is de aanwezigheid van een tweede badkamer en een extra toilet op de begane grond.
Dankzij de hoekligging profiteer je van extra ramen en een prettige lichtinval. De tuin biedt fijne buitenruimte, waarbij nog een erfafscheiding met de buren geplaatst dient te worden, zodat je hier straks volop privacy kunt creëren.
Kortom: een huis met volop mogelijkheden om naar eigen smaak in te richten.
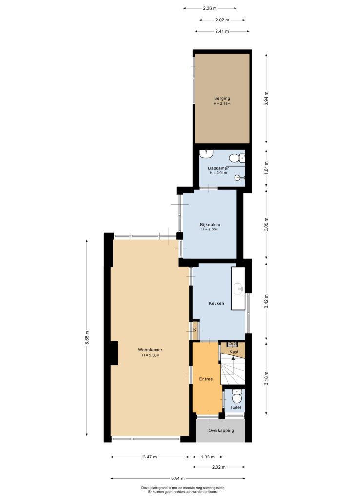
De indeling op de begane grond is:
entree, hal met gecombineerde kelder-/meterkast, eenvoudig toilet, ruime woonkamer, dichte keuken met keukenopstelling bereikbaar via de hal en de woonkamer. Vanuit de woonkamer is de bijkeuken, 2e badkamer en de tuin te bereiken.
Op de verdieping zijn er: een overloop met c.v.-installatie, 4 slaapkamers en een eenvoudige badkamer met douche en wastafel.
Bijzonderheden:
– 2e badkamer en toilet op begane grond
– Stenen berging (vast aan de woning)
– C.v.-installatie Intergas, bouwjaar 2022
– Energielabel: C;
– Projectnotaris Bruggink & van Beek Notarissen te Wijchen:
– De taxatiewaarde is € 360.000,-, deze wijkt af van de vraagprijs. Vraagprijs is leidend.
– Zelfbewoningsplicht/verhuurverbod en anti-speculatiebeding van 4 jaar van toepassing;
– KOOP NU TIJDELIJK MET EEN GUNSTIGE GEMEENTELIJKE STARTERSLENING: EXCLUSIEF VOOR STARTERS, VRAAG
NAAR DE VOORWAARDEN! OP = OP.
Kenmerken
Overdracht
| Vraagprijs | € 362.500,- k.k. |
|---|---|
| Status | Verkocht onder voorbehoud |
| Aanvaarding | In overleg |
Bouwvorm
| Soort object | Woonhuis |
|---|---|
| Soort woning | Eengezinswoning |
| Type woning | Hoekwoning |
| Soort Bouwvorm | Bestaande bouw |
| Bouwjaar | 1963 |
| Soort dak | Plat dak |
Gebruiksoppervlakten
| Woonoppervlakte | 104 m2 |
|---|---|
| Perceeloppervlakte | 200 m2 |
| Overige inpandige ruimte | 10 m2 |
| Inhoud | 390 m3 |
Indeling
| Aantal kamers | 5 |
|---|---|
| Aantal slaapkamers | 4 |
| Aantal badkamers | 2 |
Energie
| Voorlopig energielabel | C |
|---|---|
| Energie einddatum | 25 October 2034 |
| Warmwater | c.v.-ketel |
| Isolatie | Dakisolatie, muurisolatie, gedeeltelijk dubbel glas |
| Combiketel | Nee |
Buitenruimte
| Ligging | Aan rustige weg, in woonwijk, vrij uitzicht |
|---|---|
| Tuin | Achtertuin, voortuin, zijtuin |
| Achtertuin | 72 m2 |
| Ligging tuin | Noordoost |
Garage
| Soort garage | Geen garage |
|---|














































