Omschrijving
*** OPEN HUIS *** U bent op zaterdag 14 maart a.s. tussen 11:00 en 12:00 uur van harte welkom om deze woning vrijblijvend en zonder afspraak te bezichtigen. Op een toplocatie in de geliefde wijk Huurlingsedam staat deze instapklare twee-onder-een-kapwoning op een hoekperceel klaar voor nieuwe bewoners. De woning valt direct op door haar stijlvolle […]
Meer informatie
Kenmerken
| Soort object | Woonhuis |
|---|---|
| Type woning | 2-onder-1-kapwoning |
| Vraagprijs | € 637.500,- k.k. |
| Bouwjaar | 2010 |
| Energielabel | A |
| Woonoppervlakte | 146 m2 |
| Inhoud | 552 m3 |
| Perceeloppervlakte | 225 m2 |
Heeft u vragen over dit object?
Omschrijving
*** OPEN HUIS ***
U bent op zaterdag 14 maart a.s. tussen 11:00 en 12:00 uur van harte welkom om deze woning vrijblijvend en zonder afspraak te bezichtigen.
Op een toplocatie in de geliefde wijk Huurlingsedam staat deze instapklare twee-onder-een-kapwoning op een hoekperceel klaar voor nieuwe bewoners. De woning valt direct op door haar stijlvolle architectuur met karakteristieke details zoals de hoge kap, fraaie metselsteen, dakrand en charmante raampartijen met roeden. Dankzij de vele ramen — óók in de zijgevel — geniet je hier de hele dag van een prachtige natuurlijke lichtinval. Dit maakt de woning heerlijk licht, open en uitnodigend.
Kenmerken
Bouwjaar: 2010
Woonoppervlakte: 146 m²
Inhoud: 552 m³
Perceel: 225 m²
Extra pluspunten? Die zijn er genoeg:
Sfeervolle woning met optimale lichtinval
Airco in woonkamer
Moderne badkamer en keuken (2022)
Brede woning (maar liefst ca. 5740 mm binnenmaat)
Nokhoogte (maar liefst ca. 4900 mm) geeft meer ruimte en comfort op de zolder
Multifunctionele tweede verdieping
Fijne tuin met veel privacy
13 zonnepanelen voor lage energielasten
Vernieuwde meterkast
Volledig geïsoleerd, energielabel A
Indeling:
Begane grond:
Via de entree met toiletruimte, meterkast en trapopgang bereik je de royale, tuingerichte woonkamer met een fraaie pvc-vloer. Aan de voorzijde van de woning bevindt zich de in 2022 vernieuwde, matzwarte leefkeuken, uitgevoerd in een praktische L-opstelling. De keuken biedt veel kastruimte, is uitgerust met diverse moderne inbouwapparatuur en vormt een echte eyecatcher. Dankzij de grote raampartijen aan zowel de voor- als zijkant is dit een heerlijk lichte en uitnodigende ruimte.
Eerste verdieping:
Op de eerste verdieping bevinden zich drie ruime slaapkamers en een moderne, recent vernieuwde badkamer. De badkamer is compleet uitgevoerd met een ligbad, separate douche en toilet en straalt comfort en luxe uit — een fijne plek om de dag ontspannen te beginnen of juist af te sluiten. De gehele verdieping is voorzien van een laminaatvloer en de wanden zijn netjes afgewerkt.
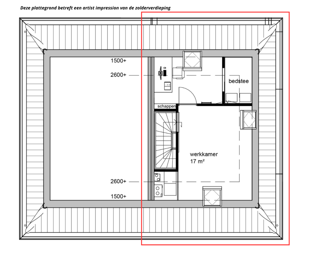
De tweede verdieping is een royale multifunctionele ruimte met een indrukwekkende nokhoogte van ca. 4,90 meter. Ideaal om extra (slaap)kamers, een werkruimte of hobbykamer te realiseren. Daarnaast bevindt zich hier ook de opstelplaats voor Cv-ketel (Intergas, 2010), wasmachine, droger en mechanische ventilatie box en is de ruimte voorzien van dakvenster met verduisteringsscherm, nette laminaatvloer en diepe knieschotten voor bergruimte.
Ook buiten is het genieten.
De achtertuin is groen, sfeervol en uitnodigend aangelegd en vormt een fijne verlenging van de woning. Het gezellige terras nodigt uit tot ontspannen momenten, terwijl het gazon en het omliggende groen zorgen voor een rustige, natuurlijke uitstraling. Dankzij de volledig omsloten ligging, de houten erfafscheidingen geniet je hier van veel privacy en vrijwel geen inkijk. Bovendien biedt het gazon een fijne plek voor kinderen om te spelen. Achter in de tuin staat een praktische berging, ideaal voor fietsen en tuingereedschap.
Kortom: een instapklare, energiezuinige en ruime gezinswoning op een fantastische locatie!
Kenmerken
Overdracht
| Vraagprijs | € 637.500,- k.k. |
|---|---|
| Status | Beschikbaar |
| Aanvaarding | In overleg |
Bouwvorm
| Soort object | Woonhuis |
|---|---|
| Soort woning | Eengezinswoning |
| Type woning | 2-onder-1-kapwoning |
| Soort Bouwvorm | Bestaande bouw |
| Bouwjaar | 2010 |
| Soort dak | Schilddak |
Gebruiksoppervlakten
| Woonoppervlakte | 146 m2 |
|---|---|
| Perceeloppervlakte | 225 m2 |
| Inhoud | 552 m3 |
Indeling
| Aantal kamers | 5 |
|---|---|
| Aantal slaapkamers | 3 |
| Aantal badkamers | 1 |
| Voorzieningen | Airconditioning |
Energie
| Voorlopig energielabel | A |
|---|---|
| Energie einddatum | 31 December 2030 |
| Warmwater | c.v.-ketel |
| Isolatie | Dakisolatie, muurisolatie, vloerisolatie, dubbel glas |
| Combiketel | Nee |
Buitenruimte
| Ligging | In woonwijk |
|---|---|
| Tuin | Achtertuin, voortuin, zijtuin |
| Achtertuin | 98 m2 |
| Ligging tuin | Zuidoost |
Garage
| Soort garage | Geen garage |
|---|



































