Omschrijving
Moderne tussenwoning uit 2020 met stijlvolle afwerking en diepe, zonnige tuin Charmant, eigentijds en helemaal van nu — dat is deze leuke tussenwoning aan de Wagenmaker 76. De woning is uitstekend geïsoleerd, voorzien van 6 zonnepanelen, moderne afwerking én vloerverwarming op de begane grond. Dankzij het bouwjaar 2020 profiteer je van het comfort en de […]
Meer informatie
Kenmerken
| Soort object | Woonhuis |
|---|---|
| Type woning | Tussenwoning |
| Vraagprijs | € 450.000,- k.k. |
| Bouwjaar | 2020 |
| Energielabel | A |
| Woonoppervlakte | 98 m2 |
| Inhoud | 345 m3 |
| Perceeloppervlakte | 147 m2 |
Heeft u vragen over dit object?
Omschrijving
Moderne tussenwoning uit 2020 met stijlvolle afwerking en diepe, zonnige tuin
Charmant, eigentijds en helemaal van nu — dat is deze leuke tussenwoning aan de Wagenmaker 76. De woning is uitstekend geïsoleerd, voorzien van 6 zonnepanelen, moderne afwerking én vloerverwarming op de begane grond. Dankzij het bouwjaar 2020 profiteer je van het comfort en de energiezuinigheid van nieuwbouw, gecombineerd met een warme en sfeervolle uitstraling. De circa 16 meter diepe achtertuin maakt het geheel extra aantrekkelijk en biedt volop ruimte om te genieten. Met momenteel twee slaapkamers en een open zolderverdieping is de woning bovendien eenvoudig uit te breiden naar drie volwaardige (slaap)kamers.
De woning ligt in de moderne en kindvriendelijke wijk De Huurlingsedam. Deze jonge, aantrekkelijke buurt staat bekend om haar rustige en groene karakter, brede straten en diverse speelvoorzieningen. De ligging is ideaal aan het begin van de wijk, waardoor je profiteert van een gunstige bereikbaarheid en alle voorzieningen in de buurt — van scholen en winkels tot sportfaciliteiten en uitvalswegen. Alles binnen handbereik, maar toch met de rust en ruimte die je zoekt.
Pluspunten op een rij
– Uitstekend geïsoleerd en energiezuinig
– 6 zonnepanelen (eigendom, 2020)
– Vloerverwarming begane grond
– Moderne afwerking
– Moderne keuken en badkamer met inloopdouche en tweede toilet
– Mogelijkheid tot 3 slaapkamers
– Fraai aangelegde tuin met houten berging
– Circa 16 meter diepe, fraai aangelegde tuin op het zuidwesten met pergola
Indeling
Begane grond
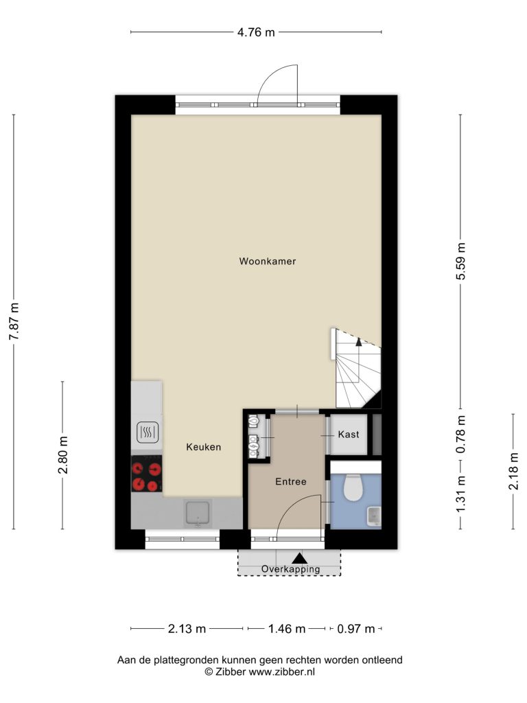
Je komt binnen in de hal met ruimte voor de garderobe, de stookruimte met cv-installatie en het moderne toilet met fontein. Aan de voorzijde staat de mat zwarte keuken — stijlvol en praktisch ingericht met diverse inbouwapparatuur waaronder een inductiekookplaat , combi-oven, vaatwasser, vriezer en koelkast. De woonkamer is heerlijk licht dankzij de grote raampartijen. De pvc-vloer, strakke wanden en raambekleding vormen samen een warm en modern geheel, perfect om neer te ploffen na een drukke dag.
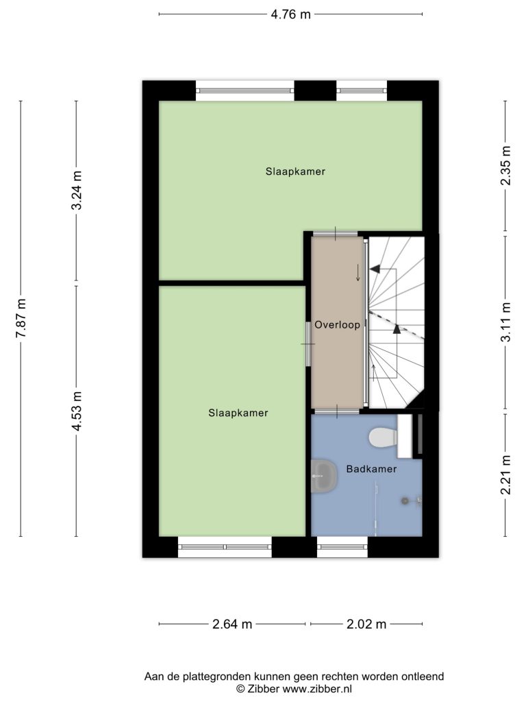
Eerste verdieping
Vanaf de overloop zijn twee slaapkamers bereikbaar. Op de overloop is een stijlvolle glazen wand geplaatst — praktisch doordat deze bijdraagt aan een prettige verdeling van warmte en geluid, terwijl het open gevoel behouden blijft. De master bedroom aan de achterzijde beschikt over twee kiep-kantelramen die zorgen voor een mooie lichtinval. De kamer biedt bovendien ruimte voor een grote kledingkast. De slaapkamer aan de voorzijde is ideaal als kinderkamer, werkkamer of inloopkast. De keurige badkamer is uitgerust met een inloopdouche, wastafel, tweede toilet, ventilatieraam en een radiator.
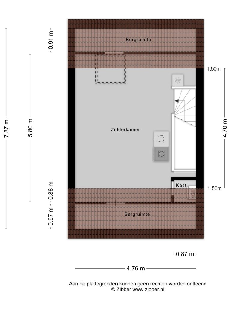
Tweede verdieping
Via een vaste trap bereik je de zolderverdieping. Deze open ruimte biedt volop mogelijkheden voor een derde slaapkamer, hobbyruimte of kantoor. Ook vind je hier de wasmachineaansluiting en extra bergruimte achter de knieschotten.
Buitenruimte
De voortuin is speels aangelegd en geeft de woning direct een vriendelijke uitstraling. De achtertuin is onderhoudsvriendelijk, maar sfeervol ingericht met een terras waar je heerlijk kunt genieten van lange zomeravonden. Achterin staat een houten berging met elektra.
Kenmerken
Overdracht
| Vraagprijs | € 450.000,- k.k. |
|---|---|
| Status | Verkocht onder voorbehoud |
| Aanvaarding | In overleg |
Bouwvorm
| Soort object | Woonhuis |
|---|---|
| Soort woning | Eengezinswoning |
| Type woning | Tussenwoning |
| Soort Bouwvorm | Bestaande bouw |
| Bouwjaar | 2020 |
| Soort dak | Zadeldak |
Gebruiksoppervlakten
| Woonoppervlakte | 98 m2 |
|---|---|
| Perceeloppervlakte | 147 m2 |
| Inhoud | 345 m3 |
Indeling
| Aantal kamers | 3 |
|---|---|
| Aantal slaapkamers | 2 |
| Aantal badkamers | 1 |
| Voorzieningen | Buitenzonwering, mechanische ventilatie, dakraam, rolluiken, tv kabel |
Energie
| Voorlopig energielabel | A |
|---|---|
| Energie einddatum | 5 February 2030 |
| Warmwater | c.v.-ketel |
| Isolatie | Dakisolatie, muurisolatie, vloerisolatie, volledig geïsoleerd |
| Combiketel | Nee |
Buitenruimte
| Ligging | Aan rustige weg, in woonwijk |
|---|---|
| Tuin | Achtertuin, voortuin |
| Achtertuin | 80 m2 |
| Ligging tuin | Zuidwest |
Garage
| Soort garage | Geen garage |
|---|




































